Thank you for your continued prayers and support for the building project!
Renderings
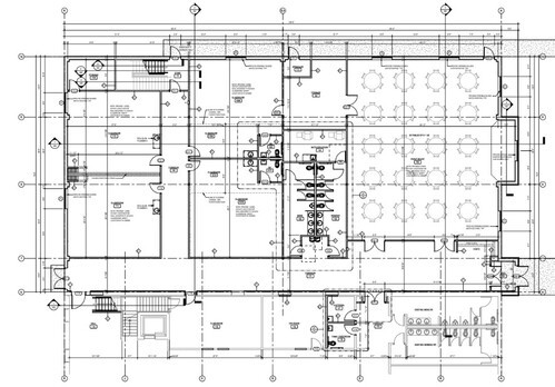
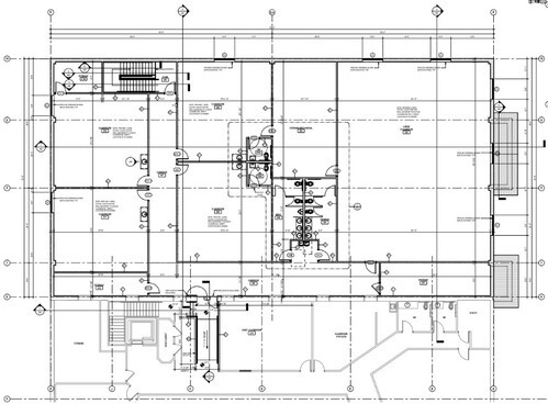
Floor Plans


First Floor
Second Floor


Estimated project cost: $4.4 million
Support raised as of December 1: approximately $3.5 million
Ways to Give
Online Giving
Please select the Building Fund in the drop-down menu.
Check
Checks can be made out to Federated Fellowship Church. Please include “Building Project” in the memo line.
Donate Through Stocks & Mutual Funds or RMD's
- Stock and Mutual Funds: If securities have been held for more than one year and are gifted directly to Federated Fellowship, the donor receives a tax deduction equal to the appreciated value of the security and the unrealized capital gain is not taxable.
- RMDs: If you are over age 70.5 and are taking Required Minimum Distributions (RMDs), you can request that it be sent directly to Federated as a gift.
Grain
There is a tax benefit in gifting grain when grain is requested to be transferred directly to Federated at the time it is delivered to the elevator or if it is in storage. The tax benefit is from not recognizing income on the sale of the grain.
Pella Rolscreen Foundation Matching Gifts
Pella Rolscreen Foundation has approved our building expansion project for its matching gift program. This program matches up to $5,000 per calendar year for employees and $1,000 per calendar year for retirees for up to three years. If you are interested in contributing through this program, please carefully follow the instructions below.
Follow this link to the Foundation’s matching gift site: Matching Gifts Guidelines | Pella Rolscreen Foundation
IMPORTANT: Make sure that when you request a matching gift, the team member/retiree adds “Building Project” in the “add a designation” field.
This project is approved for matching gifts until 9/11/28 or up to $100,000 matched (whichever comes first). Team members have a maximum of $5,000 per calendar year in matching gifts, and retirees have $1,000 per calendar year. There is NO carry-over period across calendar years. Donations made in 2025 MUST have match requests completed prior to 12/31/25 at noon, but it is highly recommended not to wait until the last week of the year to get the requests turned in. If you are having trouble logging in or don’t know what to do within the portal, please contact YourCause for help at 1-866-751-6031.
Follow this link to the Foundation’s matching gift site: Matching Gifts Guidelines | Pella Rolscreen Foundation
IMPORTANT: Make sure that when you request a matching gift, the team member/retiree adds “Building Project” in the “add a designation” field.
This project is approved for matching gifts until 9/11/28 or up to $100,000 matched (whichever comes first). Team members have a maximum of $5,000 per calendar year in matching gifts, and retirees have $1,000 per calendar year. There is NO carry-over period across calendar years. Donations made in 2025 MUST have match requests completed prior to 12/31/25 at noon, but it is highly recommended not to wait until the last week of the year to get the requests turned in. If you are having trouble logging in or don’t know what to do within the portal, please contact YourCause for help at 1-866-751-6031.
Please notify the church of gifts designated for the building project.
With all giving methods, please consult your tax and/or legal advisor for advice about your individual situation.
With all giving methods, please consult your tax and/or legal advisor for advice about your individual situation.
Prayer Points
Pray with us as we continue to submit to God's leading
- Unity in our body
- God’s wisdom in project decisions
- For God to provide.
- Future volunteers and ministries that will take place in the expanded space
- Contractors working on our project
- God’s wisdom in project decisions
- For God to provide.
- Future volunteers and ministries that will take place in the expanded space
- Contractors working on our project




Building Team Members
Sean Panknen
Co-Lead
Phil Stravers
Co-Lead
